Description
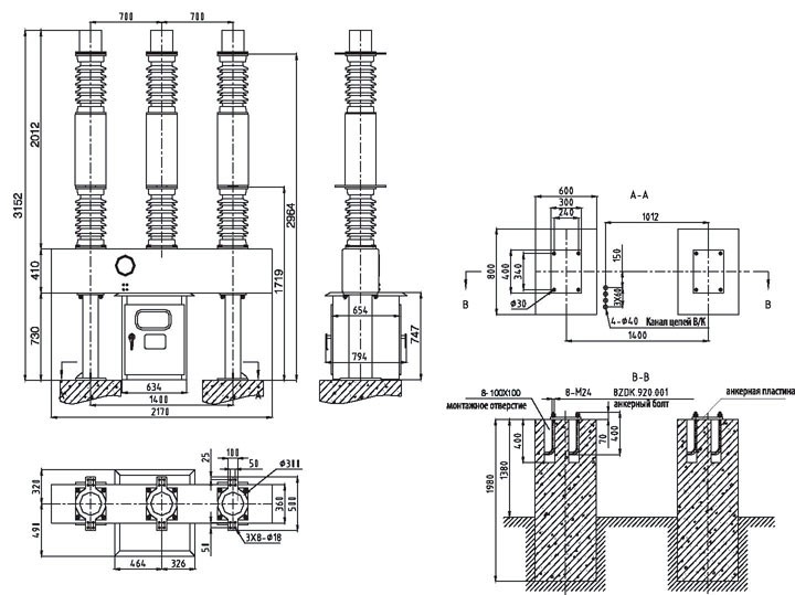
MLW8A-40.5 type outdoor high-pressure sulfur hexafluoride circuit breaker is three-pole ac 50 Hz, outdoor high voltage switch equipment, applicable to 40.5 kV power transmission and distribution system control and protection, can also be used to contact circuit breaker and movable capacitor group.
Standard: IEC 62271-100.
Certification: ISO9001-2000, CCC
Operation: Energy-storage Type
Installation: Fixed
Arc-extinguishing Medium: SF6
Speed: Normal Type Circuit Breaker
HS Code: 85353000






