Description
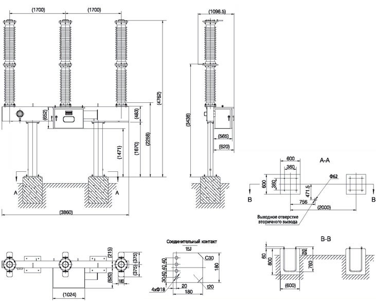
MLW36-126 gas-insulated switch — a three-pole high-voltage switching device using SF6 (SF6) as an arc extinction medium; Designed for quick switching on and off of individual circuits or electrical equipment in the power system, in normal or emergency conditions, with manual, remote or automatic control. in networks of three-phase alternating current of a frequency of 50 Hz with a rated voltage of 110 kV.
MLW36-126 is used as equipment for monitoring and protecting power systems, and can also be used as a switch for connecting individual power systems. The circuit breaker complies with the requirements of the standards GB1984-2003 and IEC62271-100 («High-voltage circuit breaker for AC networks»).
The switch uses a spring-motor drive (CT30 mechanism).
Main parameters:
Rated voltage: 126, 145kV.
Rated current: 3150, 4000A.
Rated short-circuit breaking current: 40kA.







