Description
MLW43-252 is gas-insulated switch — a three-pole high-voltage switching device using SF6 gas as an arc extinction medium; Designed for quick switching on and off of individual circuits or electrical equipment in the power system, in normal or emergency conditions, with manual, remote or automatic control. in networks of three-phase alternating current of a frequency of 50 Hz with a rated voltage of 220 kV.
This switch is used as equipment for monitoring and protecting power systems, and can also be used as a switch for connecting individual power systems. The circuit breaker complies with the requirements of the standards GB1984-2003 and IEC62271-100 («High-voltage circuit breaker for AC networks»).
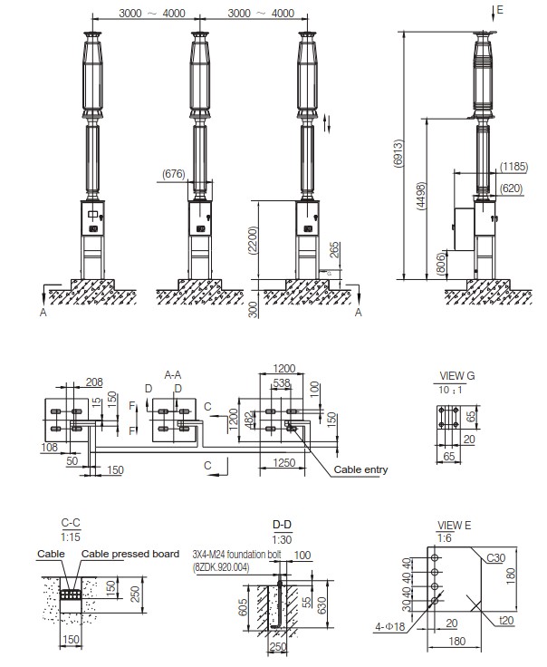
The circuit breaker is a design based on 3 porcelain-phase poles for outdoor installation, mounted on a circuit-breaker frame with racks — separately for each pole. Thanks to the principle of using the stored energy and the optimized kinetic system of the circuit breaker, the device has improved mechanical efficiency and reduced energy consumption.






