Description
MJN15-12 Earthing switch — Indoor earthing switch (earthing switch) is intended for operation as part of switchgear cabinets in three-phase alternating current networks with a frequency of 50 Hz, rated voltage 10 kV, with an insulated or earthed neutral through an arc suppression reactor or resistor, designed for visible separation of the section electrical circuit for the period of inspection or repair of equipment.
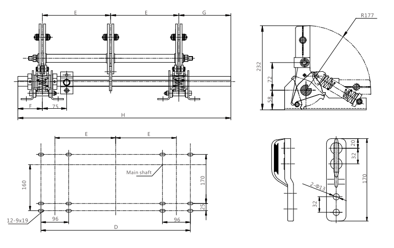
The earthing switch is equipped with a spring drive, which ensures the movement of grounding knives at a speed independent of the speed of the operator switching.
Rated voltage, kV: 10
Maximum working voltage, kV: 12
Interfacial distance, mm: 210, 230, 250, 275
For visual inspection, the MJN15-12 earthing switch is equipped with a position indicator, and the earthing switch drive system is equipped with a contact block for using the corresponding signals in the secondary signaling and control circuits. The drive system provides the necessary locks for using the ground electrode in the switchgear.
To create safe working conditions and to separate live parts of electrical equipment, the design of MJN15-12 provides for the use of two types of drives: motorized or manual, equipped with a blocking system that excludes the supply of voltage to the high-voltage equipment introduced for repair.
MJN15-12 is used for safe grounding of electrical equipment during repairs and maintenance.
Advantages of MJN15-12:
1. Security
The speed of the instantaneous mechanism is independent of the operator. Ability to turn on short circuit current.
2. Installation flexibility
The moving parts of the earthing switch are supplied assembled, and the response stationary parts are ready for installation. The pole distance can vary to install an earthing switch in the switchgear or separately. A manual drive or a motor drive may be used.
3. Compact
Compact design with minimal footprint.







