Description
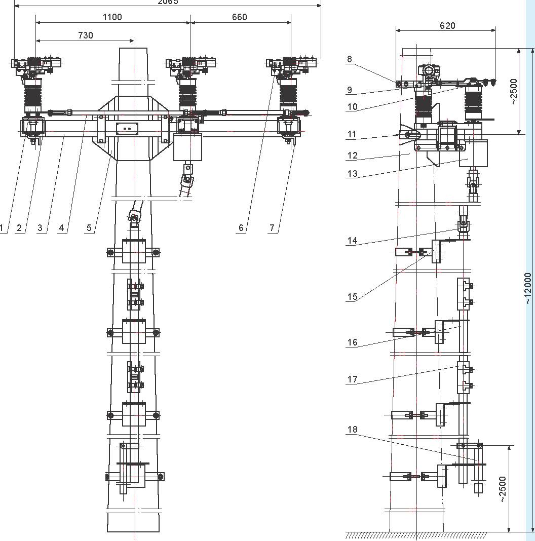
MFKW18A-12 Series High Voltage AC Disconnector for Outdoor Installation.
High voltage disconnector — an external AC switch MFKW18A-12 is designed for 50 Hz circuits with a rated voltage of 10 kV for closing, opening, transferring load current, short circuit current, for switching a line without load and a transformer without load, it can also be used in as a disconnector for protection.
MFKW18A disconnector can be mounted on street poles in various orientations: vertical, horizontal, at an angle, which simplifies installation.
Design Description MFKW18A-12
The MFKW18A-12 high-voltage external AC switch consists of a disconnector, a breaker, and a spring operating mechanism. The chopper is made of insulating material with excellent electrical characteristics, high resistance to arc discharge, high temperature resistance and high mechanical strength. A quick spring mechanism installed inside the breaker ensures that the operator’s speed does not affect the opening of the load current. The spring-loaded operating mechanism allows closing and opening operations using the energy stored during manual rotation of the traction lever. This mechanism works stably and reliably, is not subject to the influence of external factors and can ensure the fixation of the switch in the open or in the closed position. After opening, protection and insulation are performed by a visible air gap between the open contacts.





